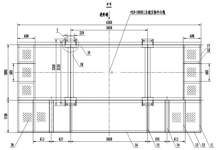
洛阳大华PLS1000立破钢结构图
作者: 发布时间:2020-07-31
洛阳大华PLS1000立破钢结构图






来源“洛阳世博矿山设备租赁”,http://www.sbkjzl.com/
洛阳大华PLS1000立破钢结构图






地址: 邮编:471023 电话:
网址:www.sbkjzl.com E-mail:
版权所有 豫ICP备15014371号-1
豫公网安备 41031102000062号